Geoform / Four Board Stool
A constrained exploration of additive rectilinear construction that resolves human support through four interlocking planar elements, crafted from a single length of poplar and realized with precision joinery and fabrication discipline.
00
problem
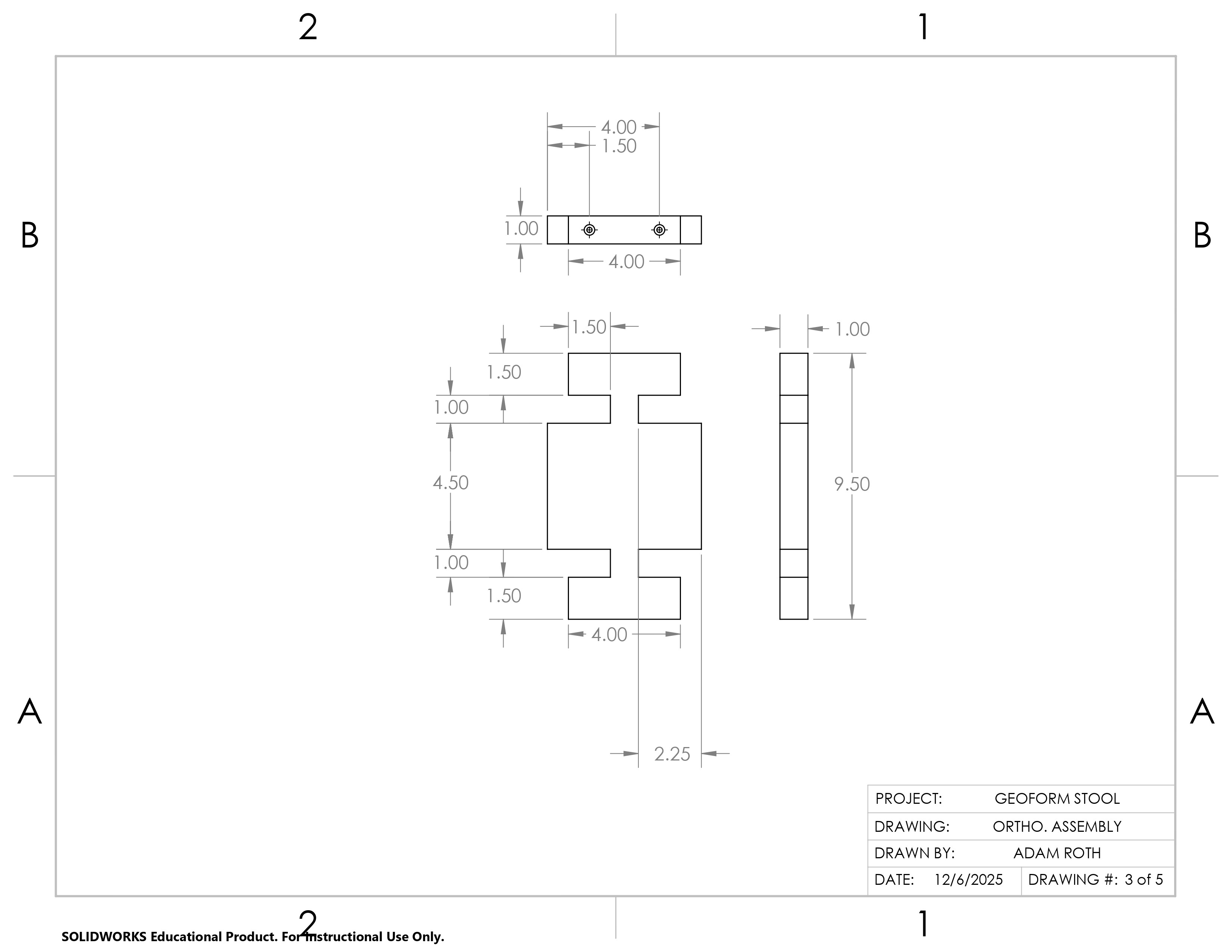
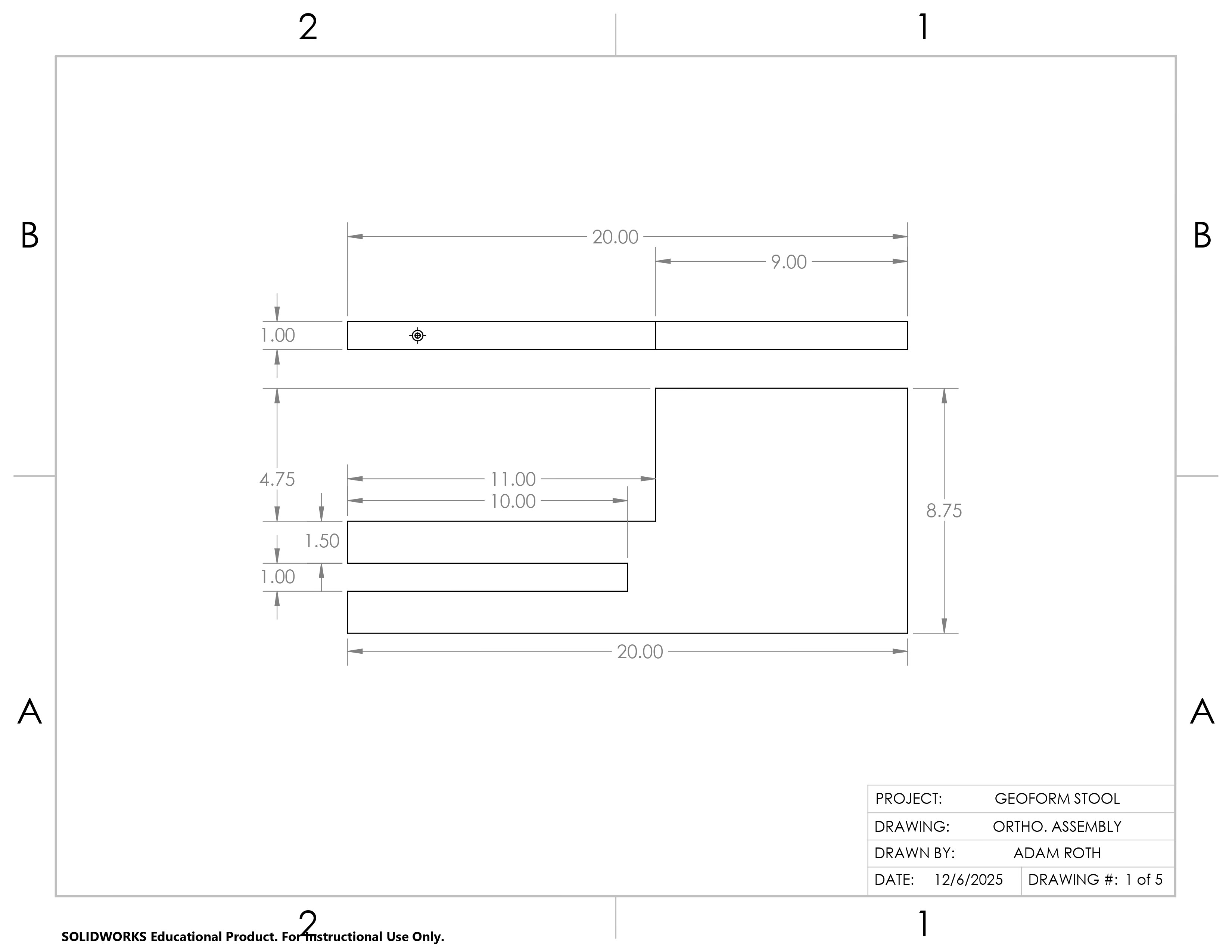
This project resembled a tightly constrained engineering puzzle: a functional seat had to be realized from a single length of poplar, composed of exactly four planar components with faces perpendicular to one another and no pierced cuts. Every cut, joint, and grain orientation required advance planning because the piece would be fabricated strictly from SolidWorks drawings treated as production contracts. Fabrication realities like a table saw, band saw, jointer, planer, router, and drill press all shaped design decisions as much as ergonomics and compositional hierarchy did.
solution
The final design uses each board to its full capacity, with 20 inch runs, consistent 1 inch thicknesses, and widths around 9.5 to 11 inches to create clear load paths and efficient material use. Long grain orientation carries compressive forces through the seat while vertical planes take shear, and broad mating faces distribute bearing loads across multiple surfaces. Interlocking geometry and tight tolerances shown in the orthographic and exploded views channel forces into stacked perpendicular planes so weight is shared by several members rather than concentrated on a single fastener. Visually the composition balances solid planes and intentional voids, so negative spaces shift as the viewer moves and reveal alternating intersections and floating planes.
Weeks of sketching and shop trials turned a tight constraint into a clear direction. Each board was pushed to its limits so grain orientation and joint geometry form deliberate load paths that share weight across stacked perpendicular planes. The result is a structurally honest, materially efficient stool that reads differently in elevation.

Early foamcore mockups exposed a hard lesson about proportion and stability: pushing for maximum height made the stool feel precarious and prone to tipping because the available board widths were limited. That forced me to rethink scale and center of gravity, and required multiple shop trials to understand how each planar element would lock together.
The geometry was calibrated to human scale so that a person of average height can sit with a comfortable angle at the knee and natural posture as well, making ergonomics an explicit driver of proportion and detail. This attention to bodily interaction reinforced the constraint-driven methodology which turned limitations into design decisions rather than obstacles. The resulting stool reads as a considered negotiation between material limits, fabrication technique, and human use, where every aesthetic choice is also a structural one.
01
02
03
04
05
06
see also










